パークアクシス市谷加賀町:高級賃貸マンション

パークアクシス市谷加賀町:お問い合わせ  
sp
空室一覧 sp ルームプラン sp フロアマップ

パークアクシス市谷加賀町:間取り図

sp

パークアクシス市谷加賀町:ルームプラン:見出し

sp

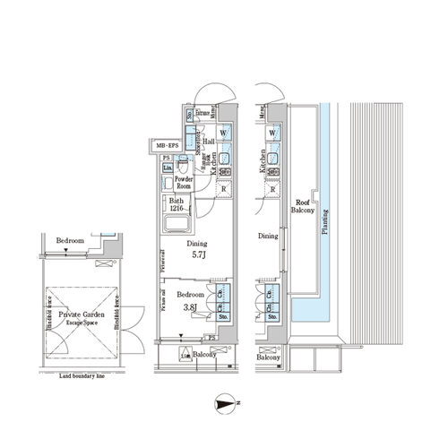
本物件の間取りは1DK(30.52㎡)から2LDK(75.69㎡)まで幅広く採用し、多彩なニーズに対応しました。
各住戸では、居室・設備・収納のバランスがとれており、心地よい暮らしに必要な要素が凝縮されています。

ご家族の団欒を深め、プライベートなひとときに安らぎをもたらす住空間。
パークアクシス市谷加賀町が求めた理想の住まいがここにはあります。

sp
1DK TYPE sp 1LDK TYPE sp 2DK・2LDK TYPE
sp
sp
pagetop
sp