sp
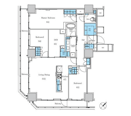
間取りタイプ

専有面積 108.45㎡(約32.80坪)

バルコニー方角/南西

間取図

sp
パークアクシス滝野川ラブリーズ | 株式会社アライバル