sp
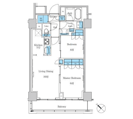
間取りタイプ

専有面積 53.61㎡(約16.21坪)

バルコニー方角/南西

間取図

sp
パークアクシス滝野川ラブリーズ | 株式会社アライバル