sp
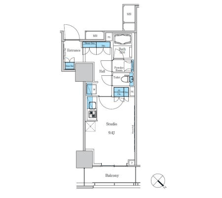
間取りタイプ

専有面積 31.36㎡(約9.48坪)

バルコニー方角/北東

 

間取図

sp
パークアクシス滝野川ラブリーズ | 株式会社アライバル