sp

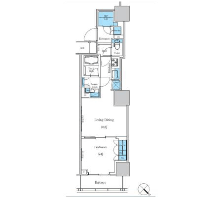
専有面積 41.49㎡(約12.55坪)

バルコニー方角/北東

 

間取図

sp
パークアクシス滝野川ラブリーズ | 株式会社アライバル