高級賃貸マンション「パークアクシス池袋イースト」の賃貸募集を開始しました。
3月末日までのご成約に限り、仲介手数料無料・礼金0ヶ月・フリーレント1ヶ月(一部住戸)にてご案内致しております。

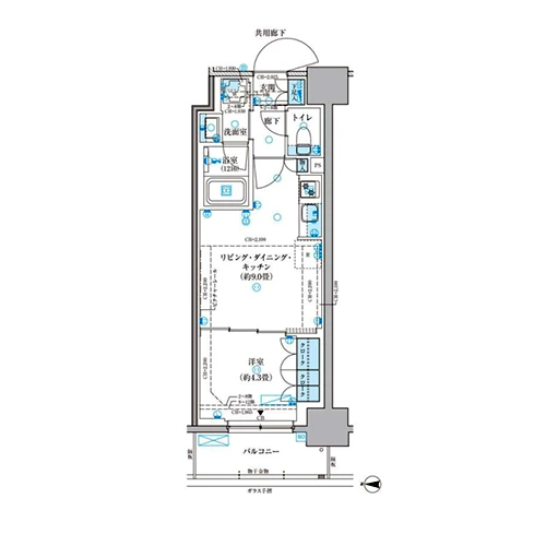
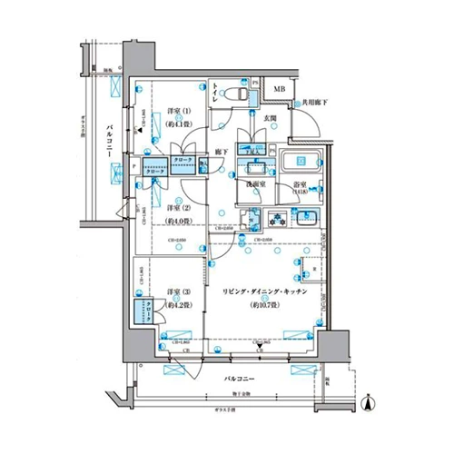
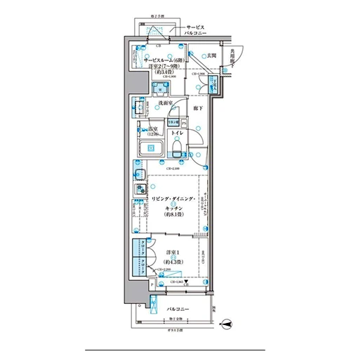
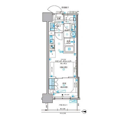
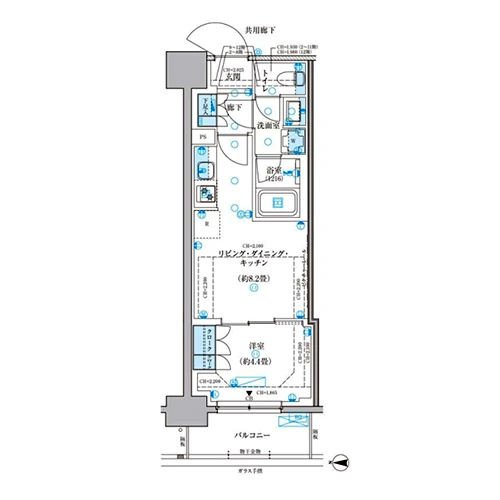
各部屋の枠内をクリックすると間取り図が表示されます。
※賃料の背景色が の住戸は、フリーレント1ヶ月となります。
最終更新日:2026年3月3日
お問合せは下記のフリーコールからどうぞ
上記の番号をタップしてお電話ください。
[電話受付時間] 10:00~19:00
※繋がりにくい場合は、
03-5343-6030へお電話ください。

メールのお問合せは24時間365日受付しています。


パークアクシス池袋イーストでは、住まう人に安らぎをもたらすこだわりのルームプランを多数ご用意しました。
また、間取りは1LDKから3LDKでシングル~ファミリー層までの幅広い世代をターゲットとしており、
一部住戸にはサウナ付き住戸や土間付き住戸を採用。ライフスタイルに合わせてプランをお選びいただけます。
さらに、質の高い設備・仕様を多く採用しているほか、便利な収納スペース、生活動線を考慮した空間設計など、
上質な暮らしをデザインする工夫を随所に施しています。


本物件のある池袋は充実した商業施設や交通アクセスが良好で、暮らしやすさを実感できる街です。
最寄りの池袋駅には「池袋PARCO」や「西武池袋本店」といった駅直結の大型商業施設も立ち並んでおり、
多種多様なお店でのショッピングはもちろん、休日のグルメ、ご家族とのレジャーなど多くの楽しみが溢れています。
また、「南池袋公園」といった緑豊かで憩いの場として親しまれるスポットも徒歩圏内。
都心でありながら心地よく過ごせる住環境が広がっています。



パークアクシス池袋イーストでは、日常に快適をもたらすワンランク上の設備・仕様を多数取り揃えました。
浴室換気乾燥機付きのバスルームや使いやすいシステムキッチン、毎日の身だしなみには欠かせない独立洗面台など、
高品質な水回りは住まいの快適性に大きく貢献しています。
また、一部住戸にはリラックスや血行を促進する効果のあるサウナを併設しました。
ハイグレードな装備の数々が、住まう人の都心生活を華やかに彩ります。
※設備一覧画像はイメージとなっており、実際の仕様とは異なります。
