sp

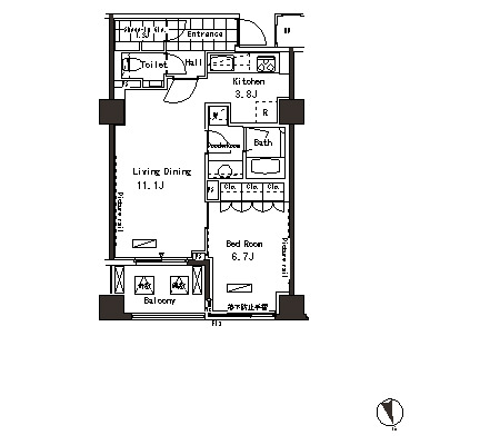
専有面積 52.26㎡(約15.80坪)

バルコニー方角/南向き

床色/濃茶

間取図(1LDK:52.26㎡)

sp
パークアクシス恵比寿 | 株式会社アライバル