sp

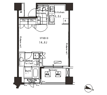
専有面積 43.09㎡(約13.03坪)

バルコニー方角/東向き

床色/濃茶

間取図(1K:43.09㎡)

sp
パークアクシス恵比寿 | 株式会社アライバル